Terrain à TRETS
- 430 000€
Terrain à TRETS
- 430 000€
Annonce
Référence: 01-1702206-BAS
- Terrain + Maison
Description
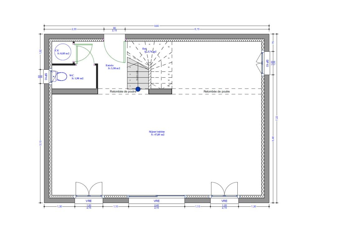
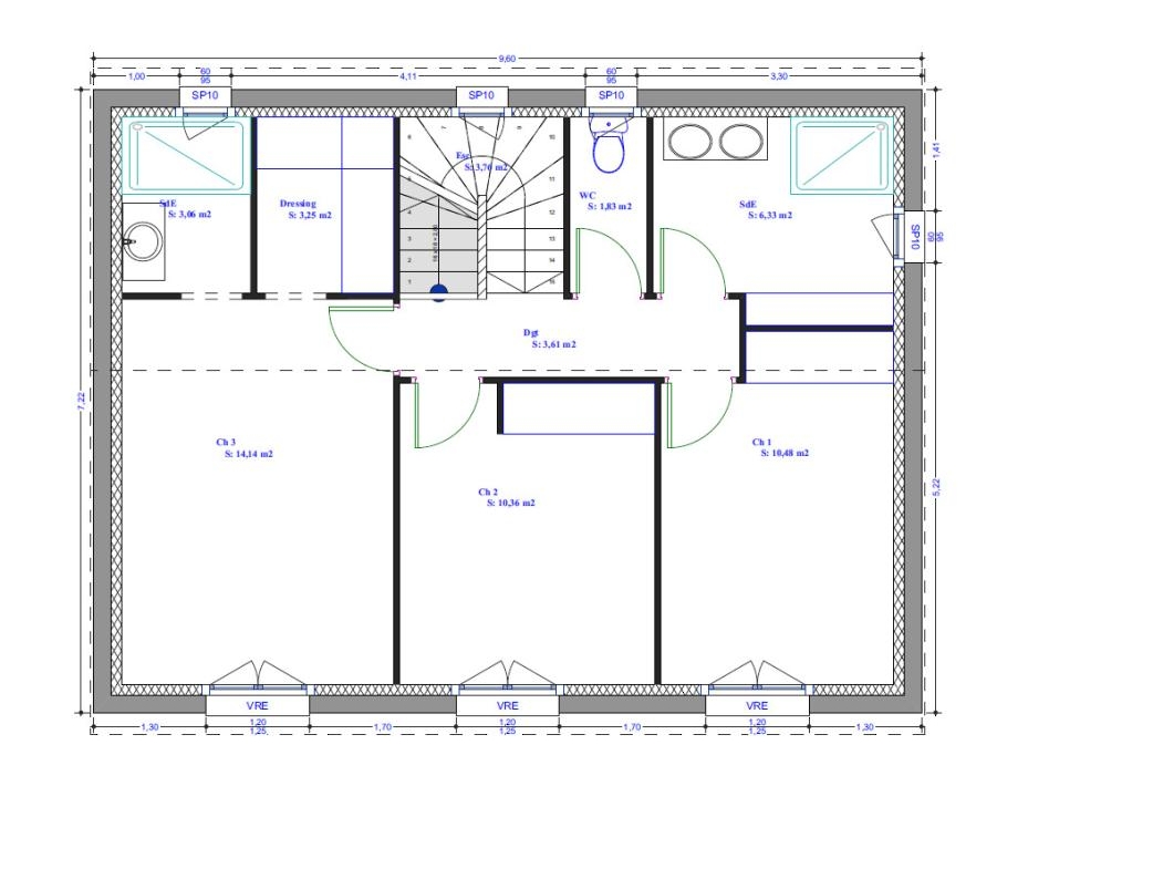
Embleme Constructions vous propose un terrain de campagne sur le village provencale de TRETS. Situé dans un secteur résidentiel et calme, ce terrain est bien rare à la vente. Exposition idéale, viabilités en bordure de terrain (évacuation des eaux en fosse septique). Permis de construire d’une bastide traditionnelle en R+1 de 112m2 habitable.
Projet clé en main à partir de 430000 euros.(hors frais de notaires et taxes éventuelles)
Pour tous renseignements et une étude approfondie de votre projet construction, contactez directement notre agence.
Adresse
Ouvrir sur Google Maps-
Ville: Trets
-
Code postal: 13530
Informations de contact
- Emblème Constructions




